2012, Saint-Genest Malifaux (42)
Avant travaux























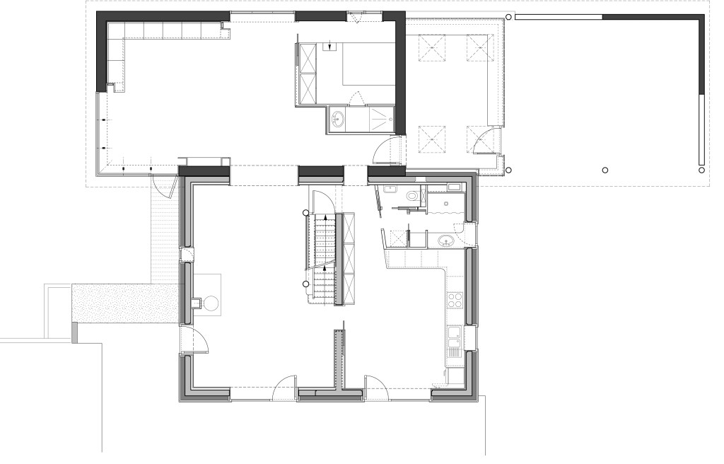
EXTENSION RÉHABILITATION
MAÎTRE D’OUVRAGE PRIVÉ
SURFACE . 248 m2
CRÉDITS PHOTOGRAPHIQUES
© SARL Dominique Vigier
© Philippe Hervouet
© Erick Saillet

Dominique Vigier & Philippe Drevet
2012, Saint-Genest Malifaux (42)
Avant travaux























EXTENSION RÉHABILITATION
MAÎTRE D’OUVRAGE PRIVÉ
SURFACE . 248 m2
CRÉDITS PHOTOGRAPHIQUES
© SARL Dominique Vigier
© Philippe Hervouet
© Erick Saillet