1993, Mougins (06)

Les grands cèdres et les buis centenaires du parc…
La maison au bout de l’allée des tilleuls… Il faut agrandir sans bouleverser, garder l’âme de la maison et cependant donner un souffle nouveau.
La maison de retraite comme une maison. Une variété de lieux pour parcourir, s’arrêter, se rencontrer… Raccourcir les circulations,
– casser la géométrie répétitive
– créer des échappées dans le paysage.









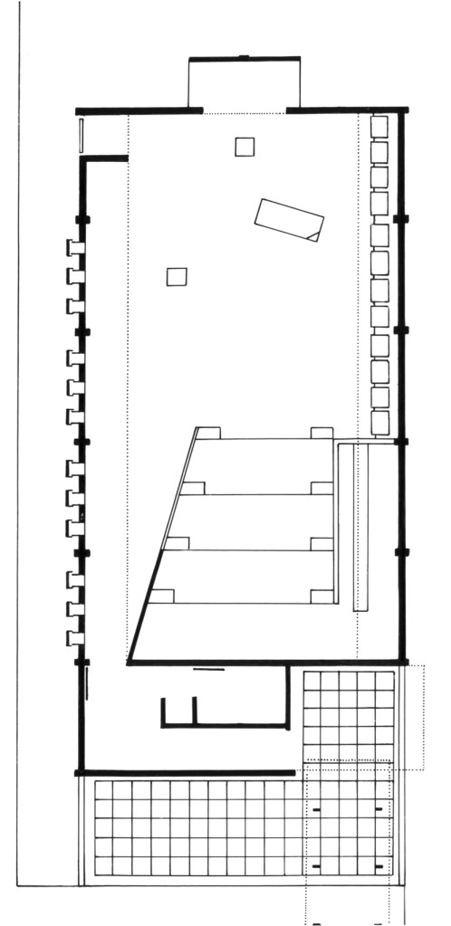
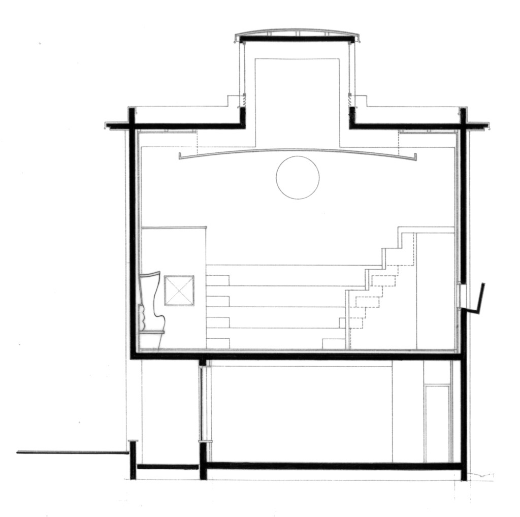
Le projet s’inscrit dans un paysage baigné de soleil, entre bâtisses imposantes, grands cèdres et buis centenaires. La maçonnerie de béton blanc est rehaussée par les couleurs de la lave émaillée. À l’intérieur de la chapelle, les découpes du plafond en staff dirigent la lumière qui provient de la lanterne en toiture.




MAÎTRE D’OUVRAGE .
Association Jean Dehon et Congrégation du Sacré Coeur
SURFACE . 3 320 m2
COÛT . 2,90 M€ TTC
CRÉDITS PHOTOGRAPHIQUES .
© Agence Dominique Vigier
