2003, Saint-Étienne (42)
Pavillon MI (30 lits), Pavillon MPR (60 lits), Unité de Rachis (plateau technique).






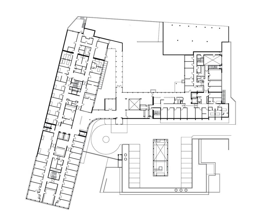
Le parti architectural.
Tout l’effort de conception de ce projet tend à clarifier l’espace à l’intérieur comme à l’extérieur. Nos choix reposent en premier lieu sur la conviction suivante :
Notre mission première consiste à ordonner et simplifier les plans car la complexité technique qui viendra au fur et à mesure se superposer à l’évolution du projet aura besoin de limpidité, si on ne veut pas aboutir à un écheveau indescriptible. En second lieu c’est la notion d’économie, au sens large, à court, moyen et long terme, qui oriente notre travail. L’actuel débat sur la ville montre clairement que les conséquences d’un urbanisme débridé débordent la propre discipline, elles entraînent de graves dysfonctionnements sociologiques et pèsent sur la santé et l’économie. L’origine du site de l’hôpital de Bellevue est de type pavillonnaire. Une succession de bâtiments identiques posés à intervalles réguliers a constitué la trame première. Le gabarit des pavillons correspondait à une organisation traditionnelle, couloir central et distribution symétrique des pièces. Le choix de la posture générale du projet consista à poursuivre les constructions en limite de propriété – processus initié par le Centre de Transfusion Sanguine au début de la rue Lisfranc. Par ce choix, nous avons pu résoudre le problème de la voie de contournement et ménager ainsi une forte aération de tout le projet en créant des généreux patios où la pleine terre est conservée et où les plantations deviendront possibles…










MAÎTRE D’OUVRAGE .
CHU de Saint – Étienne
ÉQUIPE .
SARL Dominique Vigier mandataire,
Jacques Valla (architecte associé)
SARL M Tissier (Économistes),
Louis Choulet (BET Fluides),
Ingénierie construction (BET Structure)
SURFACE . 10 760 m2
COÛT . 13, 11 M€ HT
CRÉDITS PHOTOGRAPHIQUES .
© Érick Saillet
© Agence Dominique Vigier
